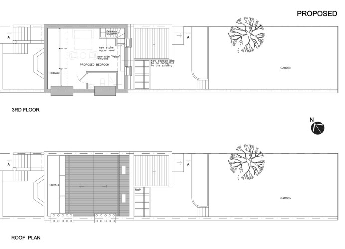
residential extension, hackney, london, 2009 residential

This project involves a kitchen extension to a Victorian property, situated on Powercrofts Road in Hackney, London.
It incorporates option design, design development, planning and building regulation applications, materials specification, and project management.

Construction finish: 2010